Oficinas/locales en alquiler en Caguas
Activo desde 07 de Octubre

Oficina localizado en 2do piso

$ 352
📍 Caguas 🛁 2 Baños

Detalles del anuncio

Baños
2
Precio
$ 352
Municipio
Activo desde
07 de octubre
visitas
97

Descripción

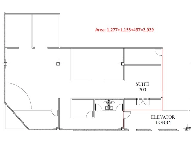
Oficina localizado en 2do piso

Local para oficina localizado en 2do piso de Gatsby Plaza en Caguas. Tiene un total de 2,928 p/c los cuales se pueden dividir en 2 o 3 locales empezando en 700 p/c o 1,000 p/c (ver croquis incluidos). La renta es "Full Service" y incluye aire acondicionado central, techos acústicos, lámparas de techo, consumo de electricidad, agua, seguro, limpieza de áreas comunes, 4 estacionamientos por cada 1,000 p/2 alquilado en orden de llegada, cisterna, planta eléctrica para todos el edificio y mucho má...

Pmi Puerto Rico 112 anuncios publicados